|
||||||
| 住所 | 敷金 礼金 |
面積 | 構造 | 引渡時期 | 築年月 | 階/階建 |
|---|---|---|---|---|---|---|
| 京都市伏見区新町3丁目 | 0万円 0万円 |
34.95m2 | 鉄筋コンクリート造 | 相談 | 2025/09 | 1階〜1階/5階建 |
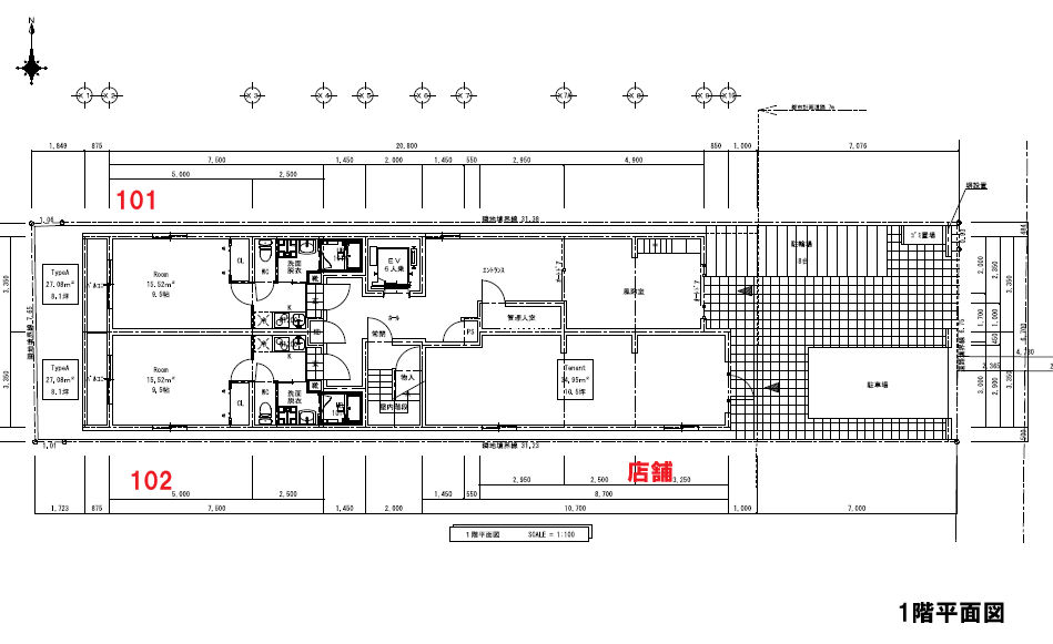
【新築】 プリシード桃山新町レジデンス 1階店舗
●○●新築店舗!令和7年9月11日入居可予定。スケルトン渡し。店舗前専用駐車場は月額20,000円(税別)要。仲介手数料1ヶ月分要。●○●
【保証金返還率】
契約締結後及び契約開始後、3年未満30%、6年未満50%、10年未満70%、10年以上100%
【備 考】
@火災保険、保証会社別途加入要(別途費用がかかります)。
A間取りは現状を優先といたします。
Bフレッツ光ネクスト(1Gbps)によるインターネット完備。Wi-Fi環境完備。店舗に光ファイバーケーブル配備。IP電話はオプション。
Cアクト安心ライフに加入の必要あり(月額¥825)。
| 物件番号 | 12529 | ||
|---|---|---|---|
| 交通 | 京阪本線 伏見桃山駅まで 徒歩4分 近鉄京都線 桃山御陵前駅まで 徒歩6分 京阪本線 中書島駅まで 徒歩10分 |
バス停最寄施設 | |
| 保証金 | 99万円 | 償却 | 0万円 |
| 契約期間 | 3年 | 取引態様 | 仲介 |
| 坪賃料 | ¥17,167 | 更新料 | 無し |
| 特色 | 新築、駐車場(有料)、駅至近、光ファイバー(フレッツ光ネクスト1Gbps) | ||
※掲載されている物件データが現状と異なる場合は現状を優先します
地図
|
地図を右クリックでルート検索が可能です。
|
位置情報ご注意:位置情報は精査中の為あくまで参考程度の情報となります。
![]()
- ミナージュ 有限会社ミナミ住宅販売
- TEL:075-605-1138
- FAX:075-605-1132















